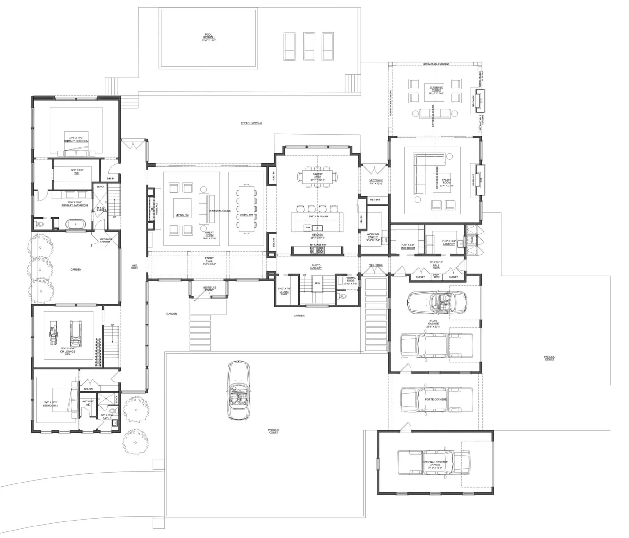
Interior Program

Thoughtfully designed by the award winning architecture firm of Christian Rae Studio, LLC to support both everyday living and moments of gathering, this residence balances generous private spaces with inviting communal areas. The program reflects a modern lifestyle—where wellness, entertaining, and quiet retreat coexist within a cohesive architectural framework.

  • 5,000–6,000 square feet of finished, above grade living space

  • Two-car garage with an optional third garage and covered carport

  • Culinary kitchen with dedicated prep kitchen and walk-in pantry

  • Primary suite with walk-in closet and double vanity bath

  • 3 En-suite bedrooms with walk-in closets

  • Home Office

  • Gym and wellness center with adjoining courtyard

  • Great room combining living and dining areas with fireplace

  • Large covered porch with cathedral ceiling

  • Spacious laundry room, mudroom, and pool bath

  • Customizable basement with walkout potential

  • Swimming pool

  • Fire pit and outdoor fireplace

Together, these elements create a home that is both highly functional and designed to evolve with its owners while remaining rooted in comfort, connection, and thoughtful architectural detail.

Design Imagery